Design Your Own Log Cabin Contact Form

As one of Europe’s largest supplier of log cabins, Cabins UK have a full range of log cabins, garages and buildings manufactured in 28mm, 34mm, 44mm and 68mm premium pine timber as standard.

Increasingly, though, customers have approached us with their dream, their vision of exactly what they want their log cabin to look like.

We are pleased to announce that we can help realise the dream and turn it into reality.  Call us today and we can help you with the planning and design of your bespoke log cabin. We can assist you with additional ideas and suggestions to ensure that every possibility is covered. Then, when you are ready, we can sort everything for you so you know exactly what the price will be.

There is absolutely no obligation to buy and, more importantly, the service is 100% absolutely Free!

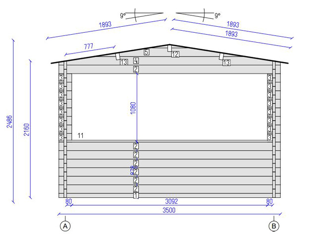
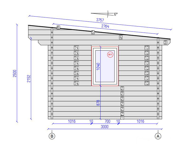
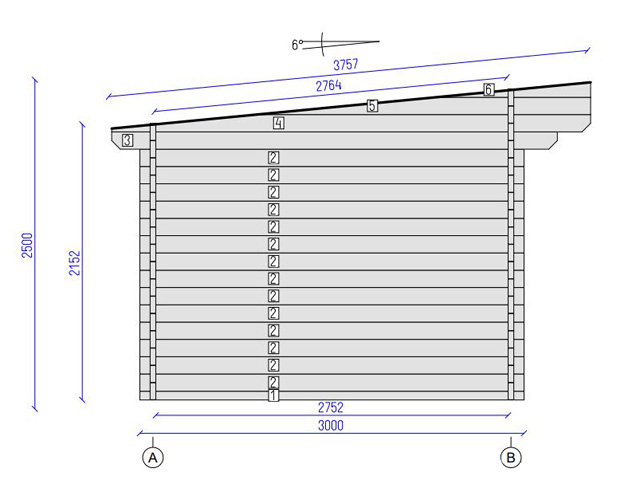
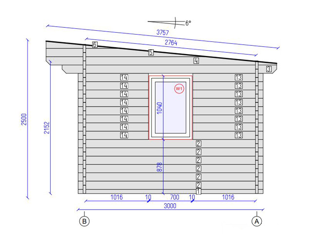
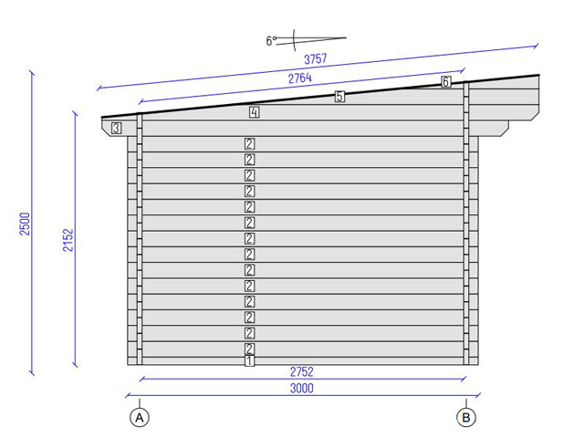
(Please note that we are unable to bespoke make corner log cabins)

    What Size Are You Looking For? metres wide by metres deep by metres high (to ridge) How Many Doors & Windows? Double Doors Single Doors Double Windows Single Windows Anything Else We Should Know? (Like An Existing Style To Base Your Cabin On)